Ficha
Zurbano - Almagro
Madrid (Chamberí) - REF. 1408

259 m2

1

3
venta: 2.750.000 €
Descripción

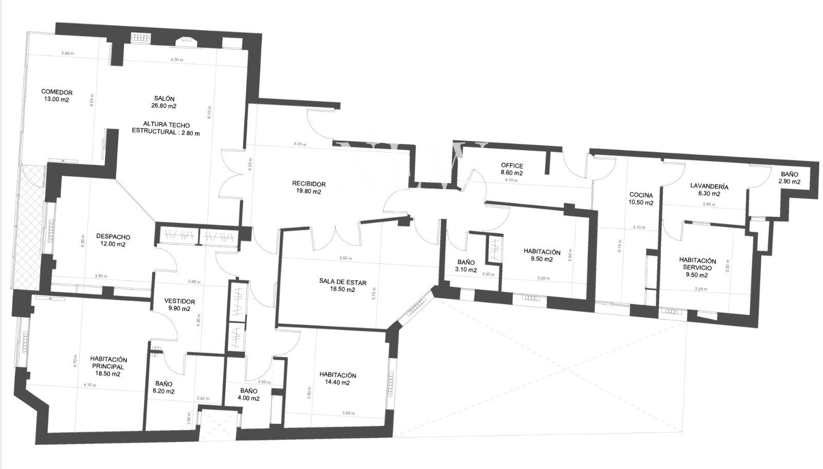
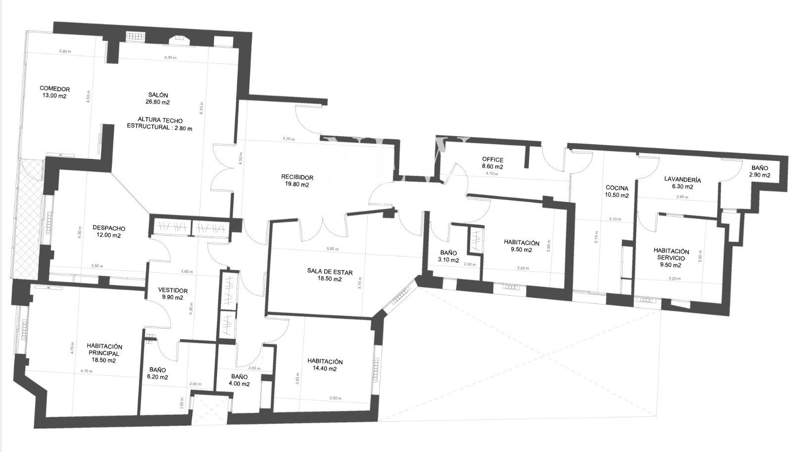
The New Madrid te presenta un piso de 259 m² en la prestigiosa calle Zurbano, una de las más representativas y elegantes de Madrid. Situado en una tercera planta, esta propiedad ofrece amplitud, luz y un sinfín de posibilidades de reforma para crear una residencia a medida en pleno barrio de Chamberí.

La vivienda cuenta con 229,86 m² útiles y se entrega con plaza de garaje y trastero, dos elementos de gran valor añadido en esta codiciada ubicación.

Su potencial es único: techos altos, estancias amplias y la oportunidad de rediseñar cada espacio al gusto del comprador. Una pieza singular en una finca representativa que combina historia, exclusividad y futuro.

Precio: 2.750.000 €

Contáctanos para más información o para organizar una visita privada a esta magnífica oportunidad en Zurbano.

Características
Precio Venta 2.750.000 €
Construidos 259 m2
Útiles 229,86 m2
Precio/m² 10.618
Trastero
Altura/Planta 3
Estado A Reformar
Garaje
Calificación Energética En trámite
Escalas de eficiencia



Tu agente
Felipe Arimany
Contáctanos

Si deseas más información sobre esta propiedad, por favor, rellena el formulario.

 Sí, he leído y/o acepto las Condiciones de uso y la Política de privacidad
Galería
Inmuebles similares:
 
3.000.000 €
Ref. 1455  274 m2  5  5

Piso exterior de 274 m² en Covarrubias, con 5 habitaciones, 5 baños, reformado y amueblado. Portero y trastero incluidos. Espacios amplios, luminosos y listos para disfrutar en Madrid.

 
2.300.000 €
Ref. 1450  203 m2  3  4

Exclusivo piso de 203 m² en Castellana, planta 13, con vistas panorámicas, tres suites, garaje, lavandería y vigilancia 24h. Reformado y amueblado con acabados de lujo.