Ficha
Claudio Coello - Castellana
Madrid (Salamanca) - REF. 1549

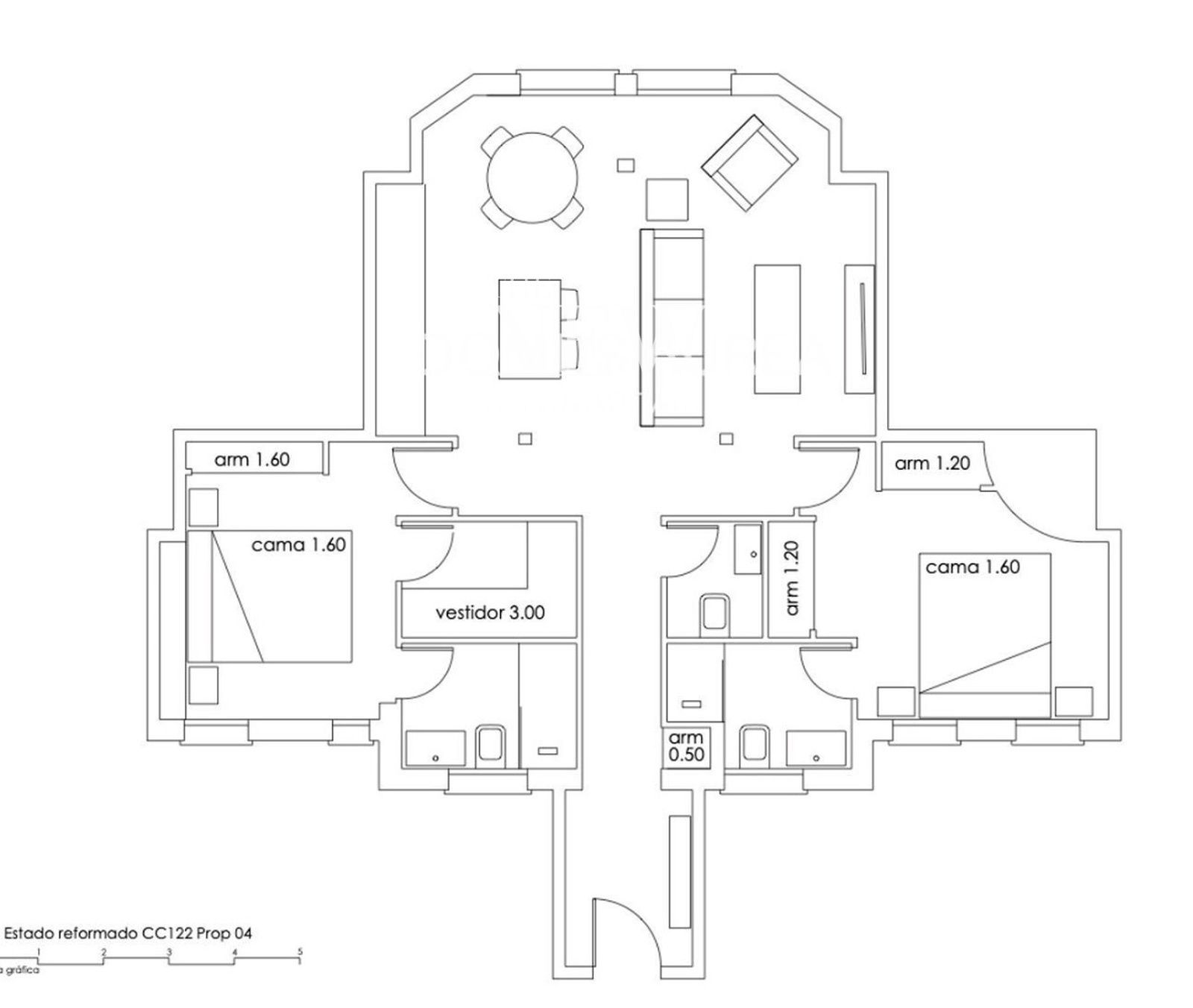
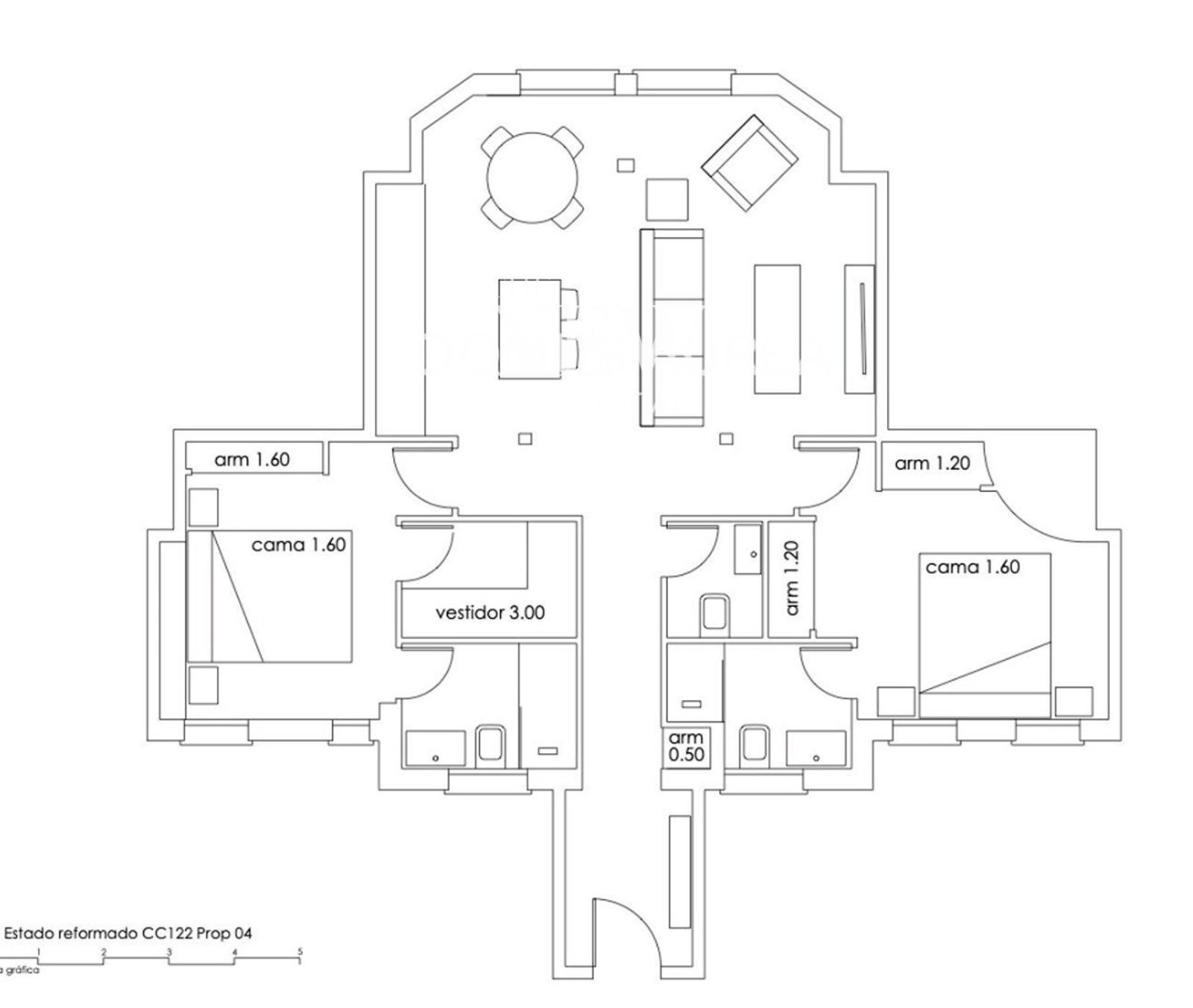
90 m2

2

2

5
venta: 1.370.000 €
antes: 1.390.000 €
Descripción

The New Madrid te presenta esta magnífica propiedad situada en la prestigiosa calle Claudio Coello, en la exclusiva zona de Castellana (Barrio de Salamanca). Ubicada en una quinta planta de una finca clásica, esta vivienda de 90 m² destaca por ser completamente exterior, lo que garantiza una entrada de luz natural excepcional en todas sus estancias.

Actualmente, el inmueble se encuentra en pleno proceso de reforma integral, siguiendo un cuidado proyecto de interiorismo. La distribución está pensada para la vida moderna: una zona social con salón-comedor y cocina integrada (totalmente amueblada y equipada), y una zona de descanso con dos dormitorios y dos baños completos. El dormitorio principal cuenta con baño en suite y la vivienda dispone de una gran capacidad de almacenamiento en armarios.

Una oportunidad perfecta para estrenar un hogar de lujo y muy luminoso en una de las direcciones más codiciadas de Madrid.

Características
Precio Venta 1.370.000 €
Construidos 90 m2
Precio/m² 15.222
Dormitorios 2
Baños 2
Calefacción Individual
Altura/Planta 5
Estado Reformado
Ascensor
Aire acondicionado
Calificación Energética En trámite
Escalas de eficiencia



Tu agente
Mónica Ferrera
Contáctanos

Si deseas más información sobre esta propiedad, por favor, rellena el formulario.

 Sí, he leído y/o acepto las Condiciones de uso y la Política de privacidad
Galería
Inmuebles similares:
 
1.530.000 €
Ref. 1614  129 m2  3  2

The New Madrid te presenta este exclusivo piso exterior de 129 m² en la calle Jorge Juan. Situado en una finca con portero, cuenta con 3 habitaciones y 2 baños, ofreciendo luz y una ubicación privilegiada en el Barrio de Salamanca.

 
1.290.000 €
Ref. 1613  135 m2  4  3
Piso en venta en Madrid, con 135 m2, 4 habitaciones y 3 baños y Garaje.