Ficha
Maldonado - Castellana
Madrid (Salamanca) - REF. 1602

287 m2

4

5

2
venta: 3.920.000 €
Descripción

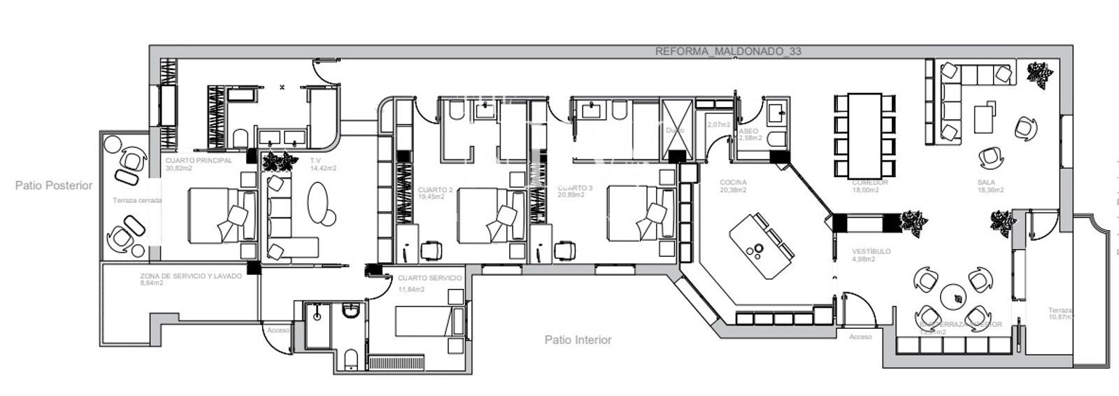
The New Madrid te presenta esta exclusiva propiedad de 287 m² situada en la emblemática calle Maldonado, en el corazón de uno de los barrios más prestigiosos de la capital. Ubicada en la segunda planta de una finca clásica de 1946 que cuenta con servicio de portero, esta vivienda destaca por su amplitud y una reforma integral que combina elegancia y modernidad.

El piso se distribuye de manera funcional y sofisticada, ofreciendo 4 amplios dormitorios y 4 baños completos, complementados por un aseo de cortesía para invitados. La zona de día está diseñada para maximizar el espacio, proporcionando un ambiente acogedor y refinado ideal para la vida familiar o el entretenimiento.

A pesar de su orientación norte, la propiedad mantiene una excelente presencia gracias a la calidad de sus acabados y su cuidada conservación. Con unos gastos de comunidad de 409 € mensuales y un IBI anual de 2700 €, esta pieza representa una oportunidad excepcional de inversión o residencia principal. La entrega de la vivienda está prevista para febrero de 2026, permitiendo planificar con antelación el traslado a un hogar donde el diseño y la ubicación privilegiada se encuentran en perfecta armonía.

Características
Precio Venta 3.920.000 €
Año de construcción 1946
Construidos 287 m2
Precio/m² 13.659
Dormitorios 4
Baños 5
Altura/Planta 2
Estado Reformado
Calificación Energética En trámite
Conserje
Escalas de eficiencia



Tu agente
Mónica Ferrera
Contáctanos

Si deseas más información sobre esta propiedad, por favor, rellena el formulario.

 Sí, he leído y/o acepto las Condiciones de uso y la Política de privacidad
Galería
Inmuebles similares:
 
4.300.000 €
Ref. 1609  266 m2  3  4

The New Madrid te presenta esta joya de 266 m² en la calle Columela, Recoletos. Planta baja exterior con orientación sur y vistas a la iglesia de San Manuel y San Benito, ideal para diseñar una vivienda de lujo a medida.

 
3.990.000 €
Ref. 1605  285 m2  4  5

The New Madrid presenta esta exclusiva vivienda reformada de 285 m² en la calle Núñez de Balboa. Situada en una tercera planta con portero , cuenta con 4 dormitorios, 4 baños, aseo y plaza de parking.