Ficha
Valenzuela - Jeronimos
Madrid (Retiro) - REF. 1619

423 m2

5

6
venta: 7.400.000 €
Descripción

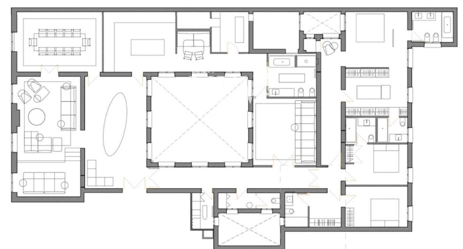
The New Madrid te presenta esta extraordinaria propiedad de 423 m² situada en la calle Valenzuela, en una finca señorial protegida de 1915 que constituye una de las joyas más exclusivas del barrio de los Jerónimos. La vivienda destaca por la majestuosidad de sus espacios, con techos que superan los tres metros y medio de altura, una característica difícil de encontrar que combina el encanto centenario con el confort contemporáneo.

El diseño de la casa gira en torno a un luminoso patio central que actúa como eje vertebrador, aportando claridad y serenidad a todas las estancias. La distribución conecta fluidamente las zonas de recibo con varios salones y un comedor, manteniendo el carácter noble gracias a sus balcones de suelo a techo y detalles originales recuperados. Dispone de 5 dormitorios y 6 baños, ofreciendo gran amplitud. Además, existe la opción de adquirir un estudio recién renovado en la misma finca, ideal como despacho, zona de invitados o vivienda de servicio. Vivir aquí es disfrutar de un auténtico lujo junto al Parque del Retiro.

Características
Precio Venta 7.400.000 €
Año de construcción 1915
Construidos 423 m2
Precio/m² 17.494
Dormitorios 5
Baños 6
Estado Reformado
Calificación Energética En trámite
Escalas de eficiencia



Tu agente
Isabella Yitani
Contáctanos

Si deseas más información sobre esta propiedad, por favor, rellena el formulario.

 Sí, he leído y/o acepto las Condiciones de uso y la Política de privacidad
Inmuebles similares:
 
7.500.000 €
Ref. 1511  455 m2  4  5

The New Madrid presenta este majestuoso piso de 455 m² en un edificio Art Decó de la calle Velázquez. Con vistas a la Embajada Italiana, ofrece 4 habitaciones, bodega y garaje en finca.

 
6.450.000 €
Ref. 1447  402 m2  4  5

Piso de 402 m² a reformar frente al Museo del Prado, con tres balcones al sur y techos altos. Exclusiva ubicación, finca clásica con portero y trastero incluido.